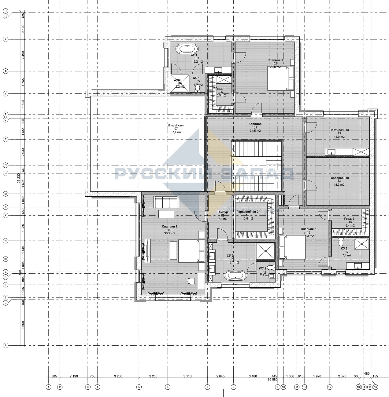
Проект каменного дома RZ-134, Львиное сердце

Каменные дома

Тип материала

750 м2

Общая площадь

2

Этажа

4

Спальни

7

Санузлов

    • svg
      Инженерно-геологические изыскания
    • Конструкторский расчет фундамента по результатам изысканий
    • svg
      Разбивка осей и пятна застройки на участке, акт
    • svg
      Земляные работы: выемка грунта, песчаная подготовка
    • svg
      Монолитная ж/б плита на ребрах жесткости (бетон М350), укладка с виброуплотнением и выравниванием
    • svg
      Армирование плиты (2 слоя) и ребер жесткости арматурой Ø 12–20 мм по проекту КЖ
    • Гидроизоляция и подготовка основания под ребра жесткости (по проекту)
    • Закладные под коммуникации согласно проекту: канализация/вода, электрика
    • Приемка скрытых работ и готового этапа
    • Зимнее бетонирование (сезонно, при необходимости): прогрев/тепловой контур по СП
    • svg
      Внешние стены из керамических блоков
    • Внутренние несущие стены и перегородки
    • svg
      Монтаж стен по проекту (рабочая документация КЖ)
    • svg
      Оригинальные оконные перемычки и термовкладыши
    • svg
      Оригинальные кладочные смеси и доборные элементы
    • svg
      Устройство армопояса и гидроизоляции
    • svg
      Ж/б межэтажное перекрытие (при наличии): монолитная плита, двойное армирование Ø12 по проекту КЖ, виброуплотнение, бетон М350 (В25)
  • svg
    Вся конструктивная деревянная часть - камерной сушки, калиброванная, с завода «Русский Запад»

    Стропильная система: доска сухая строганная 48х195 мм

    svg
    Пропитка огнебиозащитная

    svg
    Обрешетка/контробрешетка

    svg
    Вентиляционный зазор (вентзазор) между кровельным покрытием и утеплителем

    svg
    Ветровая и лобовая доска (сухая строганая вагонка)

    svg
    Подшив свесов кровли сухой вагонкой (с учетом потолков крыльца, веранд, террас, свесов)

    svg
    Пароизоляция FACRO Еurotop activ v 110 3-х слойная

    svg
    Диффузионная трехслойная мембрана Braas

    svg
    Утеплитель Knauf Insulation ПРОФ TS037 Aquastatik толщина 250 мм
    • Без фенол-формальдегидных и акриловых смол, благодаря технологии ECOSE(r)
    • Защита от воздействия влаги за счет гидрофобизирующей технологии Aquastatik
    • Без усадки, без появления щелей, срок службы не менее 50 лет
    svg
    Металлочерепица Grand Line

    svg
    Водосточная система BRYZA (ПВХ) 125/90

    • svg
      Монтаж обсадных узлов по скользящей системе
    • Окна ПВХ 70 мм. Рехау Delight 2-ух камерный стеклопакет (3 стекла), отлив
    • svg
      Конфигурация открывания створок по ТЗ заказчика
    • svg
      Энергосберегающие стеклопакеты
Запишитесь на консультацию
Обсудим детали и найдём идеальное решение!
Я подтверждаю своё согласие на обработку моих персональных данных и соглашаюсь с условиями Политики конфиденциальности данного сайта
Часто задаваемые вопросы
  • 1. Какие виды домов строит компания?

    Компания "Русский Запад" специализируется на строительстве домов из различных материалов, предлагая клиентам широкий выбор в зависимости от их предпочтений, бюджета и особенностей участка.

    Основные типы домов:

    Дома из клееного бруса (ель, сосна) – главная специализация компании. Материал производится на собственном заводе, отличается минимальной усадкой (до 1%), высокой прочностью, отличной теплоизоляцией и эстетичным внешним видом.

    Дома из клееного бруса (сибирский кедр) – элитные дома с уникальными свойствами: антибактериальный эффект, приятный аромат, устойчивость к гниению.

    Каменные дома – строятся из керамических блоков и других современных материалов, отличаются высокой прочностью, отсутствием усадки и возможностью реализации сложных архитектурных решений.

    Дома из профилированного бруса – оптимальный вариант по соотношению цены и качества с улучшенными теплоизоляционными свойствами.

    Компания предлагает как типовые проекты (с возможностью адаптации), так и полностью индивидуальное проектирование.

  • 2. В каких регионах работает компания?

    "Русский Запад" осуществляет строительство в Центральном федеральном округе, с основным фокусом на:

    • Москву

    • Московскую область

    • Ближайшие регионы: Калужская, Тульская, Тверская, Ярославская, Владимирская, Рязанская области.

    Преимущества работы в этих регионах:

    • Собственное производство клееного бруса во Владимирской области, что обеспечивает быструю доставку материалов.

    • Опыт строительства в различных климатических и ландшафтных условиях.

    • Возможность рассмотрения проектов в других регионах – обсуждается индивидуально.

  • 3. Делает ли компания проектирование "под ключ"?

    Да, "Русский Запад" предоставляет полный цикл услуг – от проектирования до сдачи готового дома.

    Этапы работы "под ключ":

    1. Проектирование

    • Эскизный проект с 3D-визуализацией.

    • Рабочая документация (чертежи, расчеты, инженерные решения).

    2. Строительство

    • Возведение фундамента, стен, кровли.

    • Монтаж инженерных систем.

    3. Отделка

    • Внутренняя и внешняя отделка.

    • Установка сантехники, электрики, систем отопления.

    Преимущества:

    • Единая ответственность (не нужно искать подрядчиков).

    • Согласованность всех этапов.

    • Фиксированная смета (без скрытых платежей).

    • Гарантия на весь объект.

  • 4. Сколько лет на рынке?

    Компания работает с 2003 года (более 20 лет). За это время:

    • Построено свыше 3500 объектов.

    • Разработаны собственные технологии производства клееного бруса.

    • Сформирована команда профессиональных архитекторов, инженеров и строителей.

  • 5. Сколько объектов уже построено?
    На сегодняшний день компания реализовала более 3500 проектов, включая:
    • 2100+ домов из клееного бруса
    • 200+ домов из кедра
    • 300+ каменных домов
    • 700+ комбинированных построек
  • 6. Есть ли у компании собственное производство?

    Да, во Владимирской области расположен собственный завод по производству клееного бруса.

    Преимущества:

    • Полный контроль качества на всех этапах.

    • Использование экологически чистых материалов.

    • Возможность изготовления нестандартных элементов.

    • Оптимизация логистики (собственный автопарк).

  • 7. Какие этапы сотрудничества с клиентом?

    1. Первичная консультация – обсуждение пожеланий, бюджета, выезд на участок.

    2. Разработка проекта – эскиз, 3D-визуализация, рабочие чертежи.

    3. Согласование сметы – фиксация стоимости в договоре.

    4. Подписание договора – прописываются сроки, этапы оплаты, гарантии.

    5. Строительство – поэтапное возведение дома с контролем качества.

    6. Сдача объекта – проверка, подписание акта, передача документов.

    7. Гарантийное обслуживание – устранение возможных недостатков.

  • 8. Какой цикл строительства типового дома?

    Для дома площадью до 250 м² срок строительства составляет до 5 месяцев.

    Этапы и сроки:

    • Подготовка участка (1–2 недели).

    • Фундамент (2–3 недели).

    • Стены и перекрытия (2–3 недели).

    • Кровля (2–3 недели).

    • Инженерные системы (2–3 недели).

    • Отделка (3–4 недели).

  • 9. Можно ли заказать индивидуальный проект?

    Да, архитекторы компании разрабатывают уникальные проекты с учетом:

    • Пожеланий клиента.

    • Особенностей участка (рельеф, грунт, инсоляция).

    • Бюджета и функциональных требований.

    Этапы индивидуального проектирования:

    1. Предпроектное исследование.

    2. Эскизный проект + 3D-визуализация.

    3. Рабочая документация.

    4. Согласование проекта.

  • 10. Делает ли компания внутреннюю отделку?

    Да, предоставляется полный комплекс отделочных работ:

    • Черновая отделка (стяжка, штукатурка).

    • Чистовая отделка (плитка, паркет, покраска).

    • Монтаж инженерных систем (электрика, водоснабжение, отопление).

    • Дизайн интерьеров (подбор материалов, мебели, освещения).

  • 11. Как формируется стоимость строительства?

    Стоимость фиксируется в договоре и зависит от:

    1. Параметров дома (площадь, этажность, сложность архитектуры).

    2. Материалов (тип бруса, кровля, окна, отделка).

    3. Инженерных решений (отопление, вентиляция, "умный дом").

    Гарантия: цена не изменится, если клиент не вносит правки в проект.

  • 12. Используются ли экологичные материалы?

    Да, компания уделяет особое внимание экологичности:

    ● Клей без формальдегида (AICA AIBON AUX-100/AUH-5E).

    ● Безопасные пропитки на водной и масляной основе.

    ● Утеплитель Knauf Insulation (без фенола).

    ● Древесина из экологически чистых регионов.

  • 13. Можно ли внести изменения в проект во время работы?

    Да, но лучше на этапе проектирования.

    Последствия изменений:

    ● На ранних этапах – минимальные корректировки.

    ● На поздних – возможен перерасход бюджета и увеличение сроков.

  • 14. Какие преимущества клееного бруса?

    1. Минимальная усадка (до 1% против 7–10% у массива).

    2. Высокая прочность (за счет склеивания ламелей).

    3. Отличная теплоизоляция (200 мм бруса = 1 м кирпича).

    4. Экологичность (безопасные клеи и пропитки).

    5. Эстетичность (не требует дополнительной отделки).

    6. Долговечность (срок службы – 50+ лет).

  • 15. Как контролируется качество работ?

    Многоступенчатая система контроля:

    1. Проверка материалов на производстве.

    2. Контроль на каждом этапе строительства.

    3. Промежуточные приемки (фундамент, стены, кровля).

    4. Финальная проверка перед сдачей.

  • 16. Какие гарантии предоставляет компания?

    ● 10 лет – на несущие конструкции.

    ● 5 лет – на кровлю.

    ● 3 года – на инженерные системы.

    ● 2 года – на отделочные работы.

    Условия: соблюдение правил эксплуатации.

  • 17. Как осуществляется доставка материалов?

    ● Собственный автопарк (грузовики, манипуляторы).

    ● Защита материалов при транспортировке.

    ● Оптимизированная логистика (особенно для Москвы и области).

  • 18. Можно ли выбрать материалы самостоятельно?

    Да, клиент может участвовать в подборе:

    ● Типа бруса, кровли, окон.

    ● Отделочных материалов.

    ● Сантехники, электрики.

  • 19. Как начать сотрудничество?

    1. Свяжитесь с нами:

    o Телефон: +7 (495) 234-01-11

    o Email: info1@ruswest.ru.

    o Офис: пр. Ольминского, 3А, стр. 3 (офис 936)

    2. Получите консультацию.

    3. Заключите договор.

    "Русский Запад" – надежность, проверенная 20-летним опытом и тысячами довольных клиентов!

Заказать звонок
Оставьте заявку, и наш менеджер свяжется с вами в ближайшее время, и ответит на все интересующие вопросы
Я подтверждаю своё согласие на обработку моих персональных данных и соглашаюсь с условиями Политики конфиденциальности данного сайта
Рассчитать стоимость проекта
Оставьте заявку, и наш менеджер свяжется с вами в ближайшее время
Я подтверждаю своё согласие на обработку моих персональных данных и соглашаюсь с условиями Политики конфиденциальности данного сайта
Оставить заявку
Оставьте заявку, и наш менеджер свяжется с Вами в ближайшее время
Я подтверждаю своё согласие на обработку моих персональных данных и соглашаюсь с условиями Политики конфиденциальности данного сайта