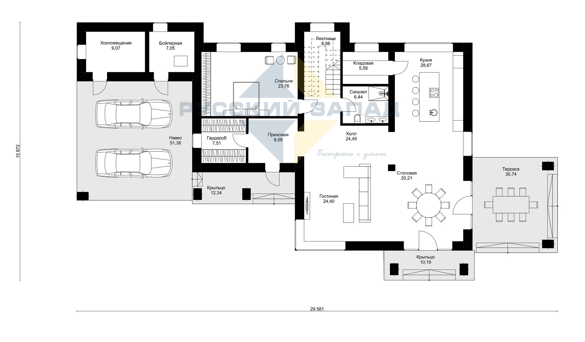
Проект каменного дома RZ-124, Немчиновка
433 м²
Общая площадь
2
этажа
4
спальни
3
санузла
Залог качества наших домов — современные керамические блоки
Мы СТРОИМ ДОМА из высококачественных поризованных блоков Porotherm, работая напрямую с производителем. Мы применяем передовые технологии строительства и профессиональное оборудование для возведения домов из этого инновационного материала.
Почему дома из Porotherm, построенные нашей компанией, превосходят другие? Потому что мы не экономим на четырёх главных составляющих: качестве блоков, технологиях кладки, профессиональном оборудовании и строительных растворах.
Блоки Porotherm производятся из экологически чистой глины с использованием современной технологии поризации. Они проходят строгий контроль качества. Хранятся в оптимальных условиях. И доставляются на объект с соблюдением всех норм транспортировки.

Рассчитать стоимость проекта
Оставьте заявку и наш менеджер свяжется с вами в ближайшее время
Похожие проекты
Монтевиль
Баня с навесом для двух машин, просторной террасой и антресолью, где расположилась дополнительная зона отдыха.
153 м²
ГР 61
Проект, в котором продуманы все зоны для уютной жизни и отдыха. А строгая архитектура делает дом внешне очень солидным.
391 м²
3 спальни
4 санузела





