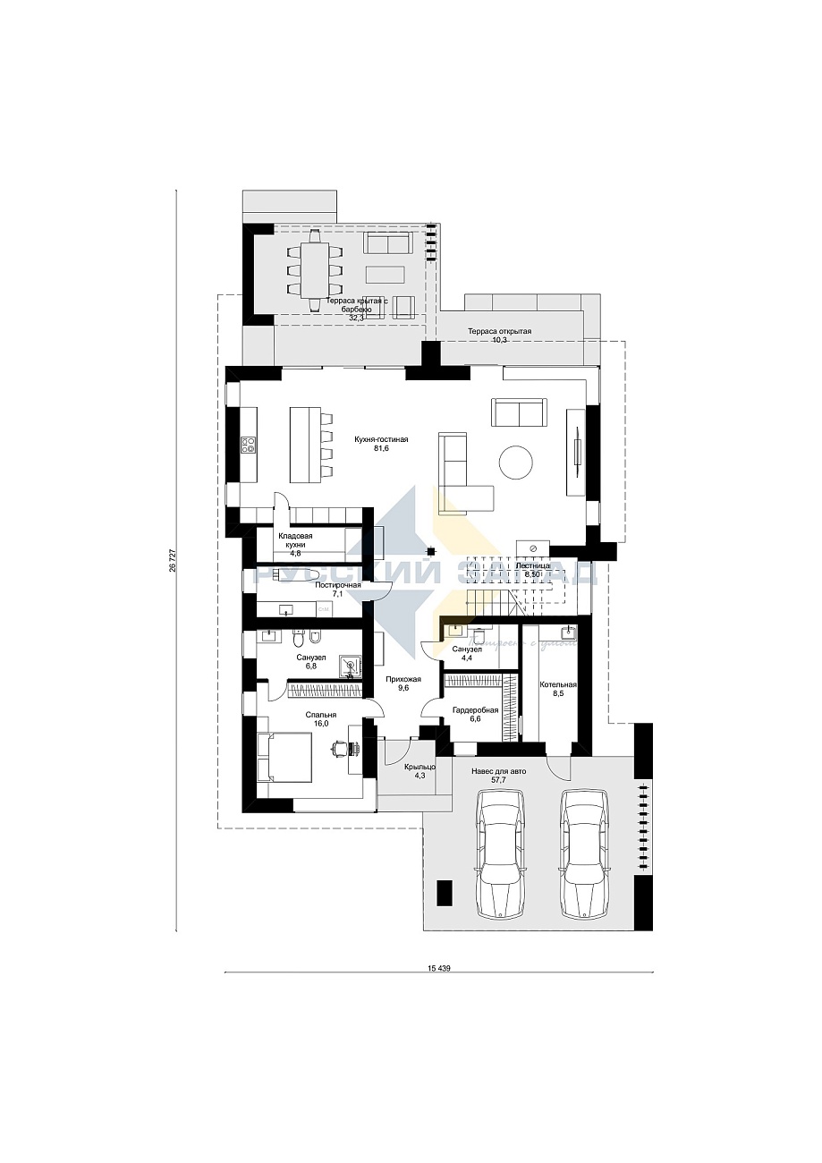
Проект каменного дома RZ-109ПО, Никольское
430 м²
Общая площадь
2
этажа
3
спальни
4
санузла
Это премиальное решение для тех, кто ценит стиль, функциональность и гармонию с природой. Сочетание минималистичного дизайна, натуральных материалов и продуманной планировки создает идеальное пространство для жизни.
Залог качества наших домов — современные керамические блоки
Мы СТРОИМ ДОМА из высококачественных поризованных блоков Porotherm, работая напрямую с производителем. Мы применяем передовые технологии строительства и профессиональное оборудование для возведения домов из этого инновационного материала.
Почему дома из Porotherm, построенные нашей компанией, превосходят другие? Потому что мы не экономим на четырёх главных составляющих: качестве блоков, технологиях кладки, профессиональном оборудовании и строительных растворах.
Блоки Porotherm производятся из экологически чистой глины с использованием современной технологии поризации. Они проходят строгий контроль качества. Хранятся в оптимальных условиях. И доставляются на объект с соблюдением всех норм транспортировки.

Рассчитать стоимость проекта
Оставьте заявку и наш менеджер свяжется с вами в ближайшее время
Похожие проекты
Норвегия
Много света, большая терраса и балконы. Это и создает облик дома.
476 м²
5 спален
6 санузлов






