Проект дома из клееного бруса Райт 7
278 м²
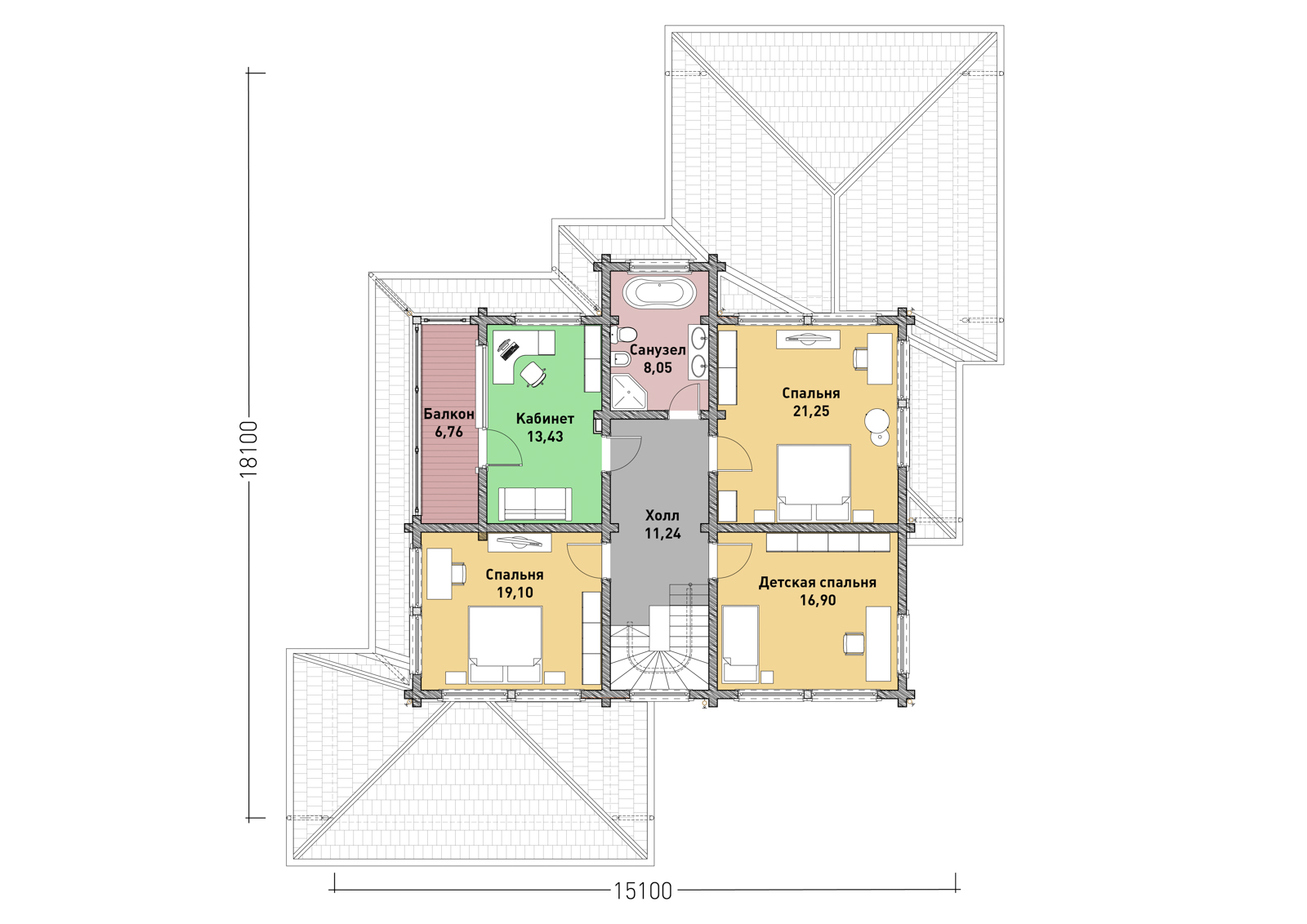
Общая площадь
2
этажа
4
спальни
2
санузла
Залог качества наших домов — наш клееный брус
Мы САМИ ПРОИЗВОДИМ клееный брус, на своём деревоперерабатывающем заводе. Мы делаем наш брус с использованием лучших финских технологий и на профессиональном оборудовании.
Почему наш брус более качественный, чем у других компаний? Потому, что мы не экономим на четырёх главных составляющих: сырье, технологиях, оборудовании и клее.
Наш брус из качественных материалов и отборной доски. Он правильно сушится. Тщательно хранится. И бережно транспортируется.
экологически безопасный клей AICA без формальдегида и других вредных веществ
различные породы дерева: ель, сосна, кедр, лиственница и пихта

Рассчитать стоимость проекта
Оставьте заявку и наш менеджер свяжется с вами в ближайшее время
Похожие проекты
Солодово
Очень простой по архитектурному решению проект. Но с изюминкой — окнами, которые занимают бОльшую часть всех фасадов!
329 м²
4 спальни
3 санузела





