Проект дома из клееного бруса Райт 10
328,44 м²
Общая площадь
2
этажа
4
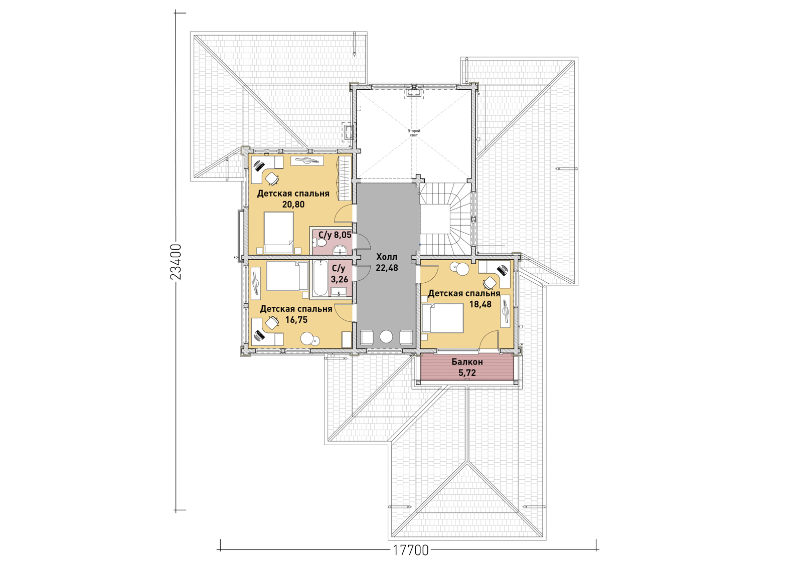
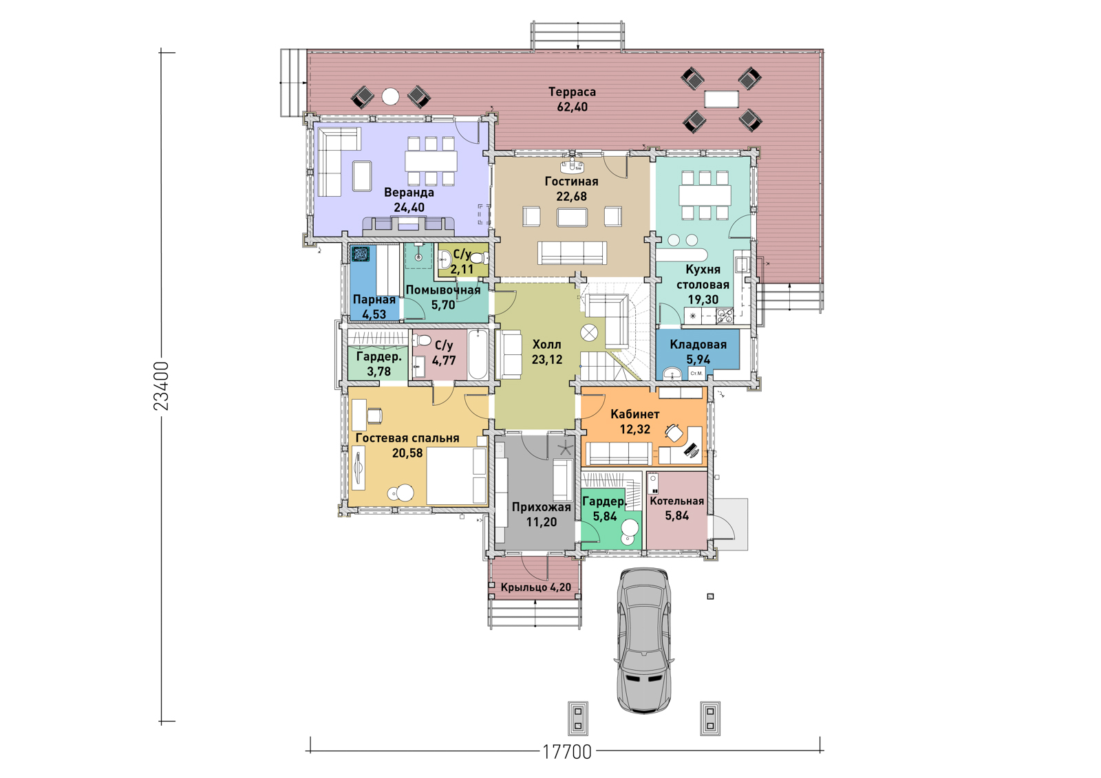
спальни
3
санузла
Залог качества наших домов — наш клееный брус
Мы САМИ ПРОИЗВОДИМ клееный брус, на своём деревоперерабатывающем заводе. Мы делаем наш брус с использованием лучших финских технологий и на профессиональном оборудовании.
Почему наш брус более качественный, чем у других компаний? Потому, что мы не экономим на четырёх главных составляющих: сырье, технологиях, оборудовании и клее.
Наш брус из качественных материалов и отборной доски. Он правильно сушится. Тщательно хранится. И бережно транспортируется.
экологически безопасный клей AICA без формальдегида и других вредных веществ
различные породы дерева: ель, сосна, кедр, лиственница и пихта

Рассчитать стоимость проекта
Оставьте заявку и наш менеджер свяжется с вами в ближайшее время
Похожие проекты
Куртниково
Узкий второй этаж — отличительная черта этого проекта. Решение небесспорное, но необычное и интересное.
208 м²
3 спальни
2 санузела
Зоран
Большой дом с встроенными гаражом и баней, с зоной для мангала и дополнительным навесом для машины.
957 м²
6 спален
6 санузлов
Золотая рыбка
Один из наших самых удачных и тщательно проработанных проектов: интересный внешний вид дома, продуманные планировка и набор помещений.
275 м²
5 спален
2 санузела





