Проект дома из клееного бруса «Надежда»
427 м²
Общая площадь
2
этажа
4
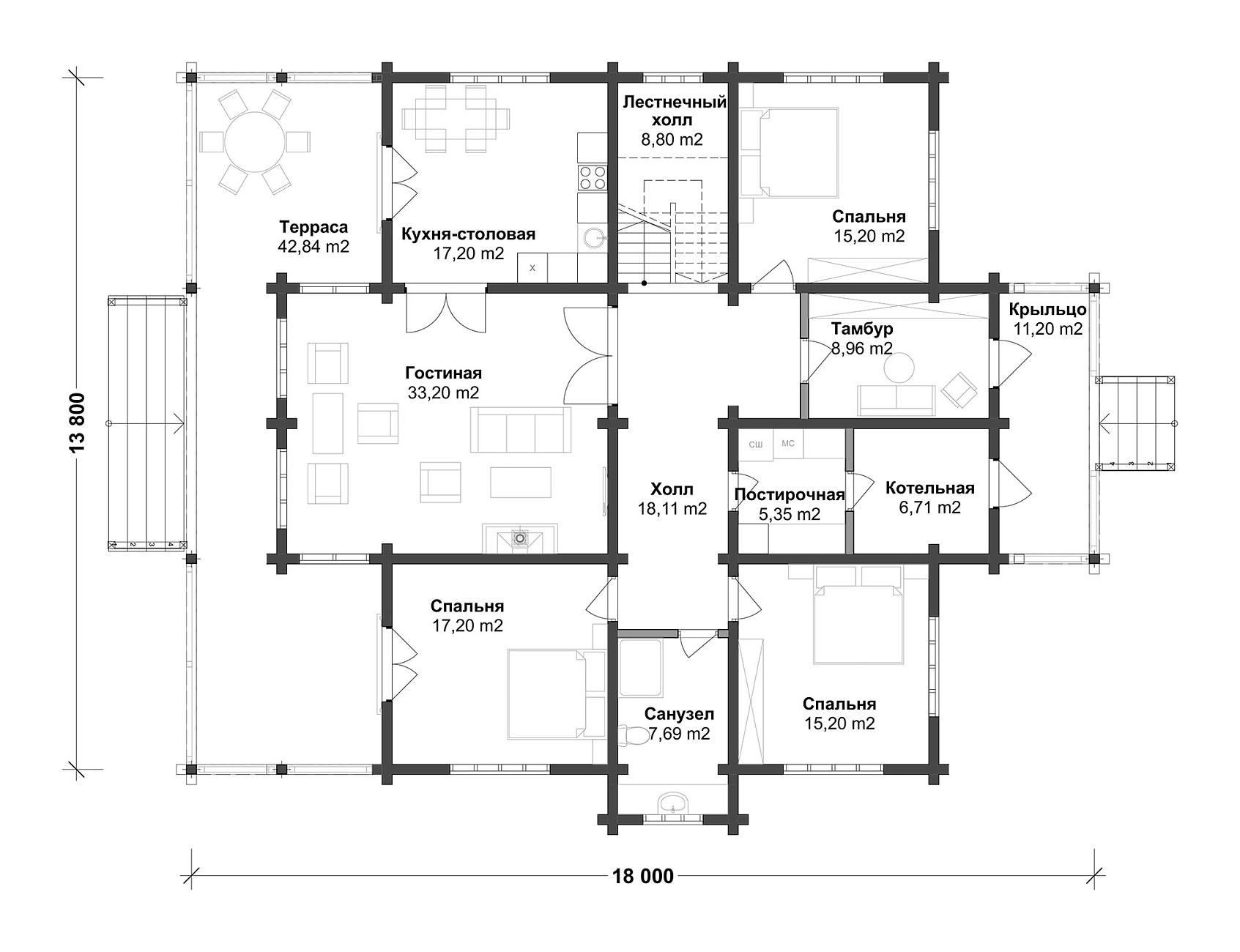
спальни
2
санузла
Дом, облик которого определяют балконы. Два симметричных балкона на главном фасаде повторяют рисунок террас первого этажа. А с противоположной стороны дом опоясывает еще один большой балкон.
Залог качества наших домов — наш клееный брус
Мы САМИ ПРОИЗВОДИМ клееный брус, на своём деревоперерабатывающем заводе. Мы делаем наш брус с использованием лучших финских технологий и на профессиональном оборудовании.
Почему наш брус более качественный, чем у других компаний? Потому, что мы не экономим на четырёх главных составляющих: сырье, технологиях, оборудовании и клее.
Наш брус из качественных материалов и отборной доски. Он правильно сушится. Тщательно хранится. И бережно транспортируется.
экологически безопасный клей AICA без формальдегида и других вредных веществ
различные породы дерева: ель, сосна, кедр, лиственница и пихта

Рассчитать стоимость проекта
Оставьте заявку и наш менеджер свяжется с вами в ближайшее время
Что входит в комплектацию дома
Проект
- Эскизный проект
- Рабочая документация
Фундамент
- Геодезические работы, вынос осей
- Песчаная подушка 400 мм
- Монолитная ж/б лента 300×600 мм
- Бетон М-300 (В 22,5 F100), сертифицированный
- Усиленная система вязки арматуры, по ГОСТ
- Гидроизоляция «Гидростеклоизол» сверху
Стеновой комплект
- Гидроизоляция под первый венец «Гидростеклоизол»
- Подкладочная доска из лиственницы
- Комплект из клееного бруса: 185х160 мм (толщина), опционально 270х160/200 (толщина)
- Балки перекрытия клееные 70х180 мм
- АКЦИЯ – высота бруса 270 мм по цене 185 мм
- Зарезка чашек по проекту, пазы под оконные обсады, антисептирование, покрытие торцов воском, пакетирование (на заводе)
- Сверловка под скрытую электропроводку
- НАШ УНИКАЛЬНЫЙ БРУС - Собственное современное производство клееного бруса с 2003 года
- Материал: сосна/ель - на выбор
- Клей AICA (Япония), экологичные конструкционные ЭПИ системы, 0% формальдегида
- JAS стандарт (Японский закон «Об окружающей среде»)
Перекрытия пола
- Деревянные клееные балки 110×180 мм
Конструкция крыши
- Вся конструктивная деревянная часть - камерной сушки, калиброванная, с завода «Русский Запад»
- Стропильная система: доска сухая строганная 48х195 мм
- Пропитка огнебиозащитная
- Обрешетка/контробрешетка
- Вентиляционный зазор (вентзазор) между кровельным покрытием и утеплителем
- Ветровая и лобовая доска (сухая строганая вагонка)
- Подшив свесов кровли сухой вагонкой (с учетом потолков крыльца, веранд, террас, свесов)
- Пароизоляция FACRO Еurotop activ v 110 3-х слойная
- Диффузионная трехслойная мембрана Braas
- Утеплитель Knauf Insulation ПРОФ TS037 Aquastatik толщина 250 мм - Без фенол-формальдегидных и акриловых смол, благодаря технологии ECOSE(r)
- Металлочерепица Grand Line
- Водосточная система BRYZA (ПВХ) 125/90
- Защита от воздействия влаги за счет гидрофобизирующей технологии Aquastatik
- Без усадки, без появления щелей, срок службы не менее 50 лет
В стоимость включено
- Монтаж
- Доставка по Московской области
- Гарантия 5 лет
Похожие проекты
Проект 95
Большие окна в пол выходят на просторную террасу, и в них отражается любой пейзаж, который вы выберете для своего дома.
103 м²
2 спальни
1 санузел







