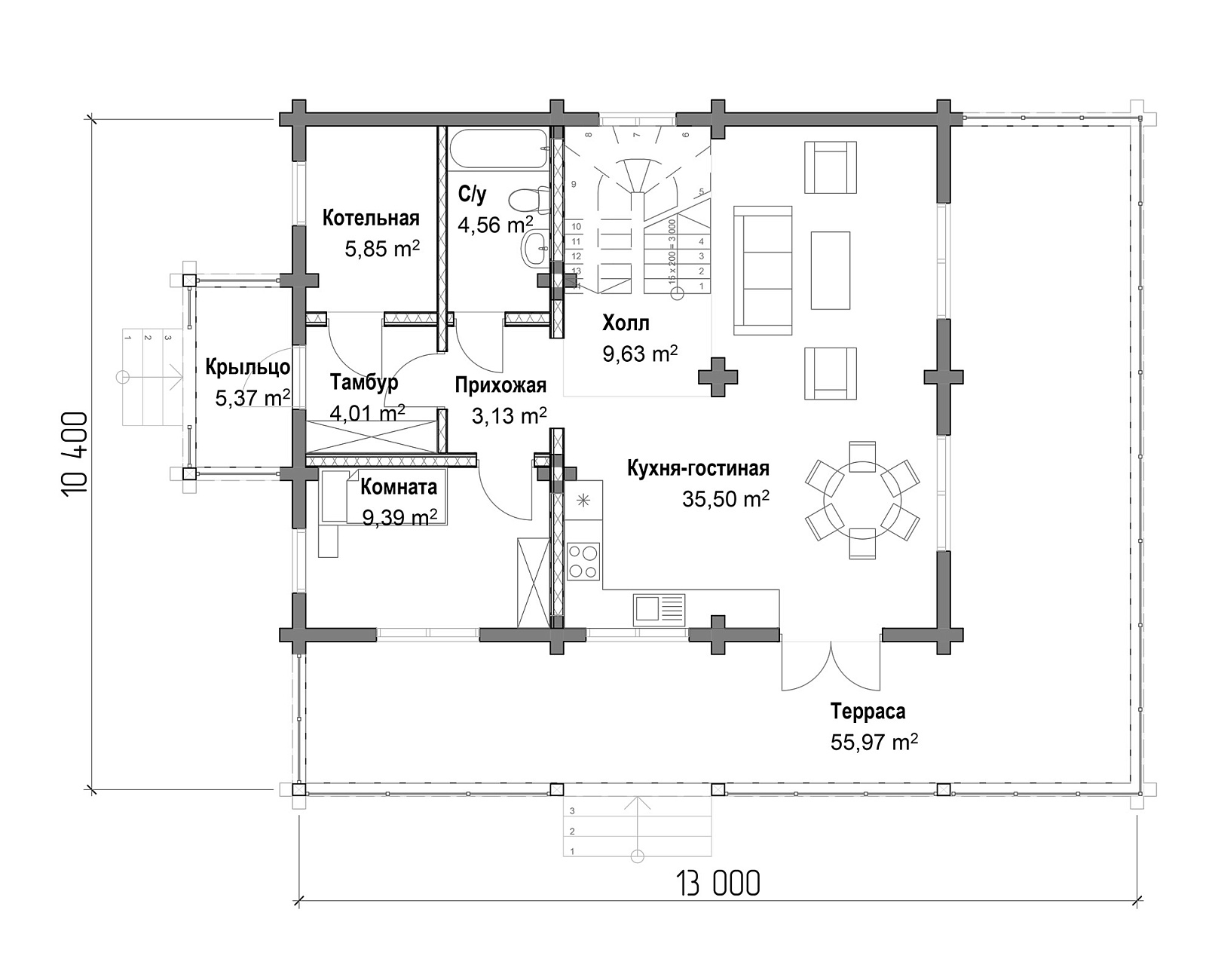
Проект дома из клееного бруса Лена

Несомненно — украшением этого дома является терраса, опоясывающая его с двух сторон. А изящные решетки балкона и террасы добавляют дому легкость и объём.

Клееный брус

Тип материала

230 м2

Общая площадь

2

Этажа

4

Спальни

2

Санузла

  • svg
    Инженерно геологические изыскания (определение состава грунтов и уровня грунтовых вод)

    svg
    Конструкторский расчёт по результатам изысканий и нагрузкам дома (по действующим СП и СНиП)

    svg
    Вынос осей и пятна застройки на участок

    svg
    Земляные работы: выемка грунта, подготовка основания, обратная песчаная засыпка с послойным уплотнением.

    svg
    Монолитная железобетонная плита на рёбрах жёсткости с обратной засыпкой

    svg
    Подушка под рёбра жёсткости: песок 300–550 мм (высота слоя по проекту), гидроизоляция основания

    svg
    Бетонирование: сертифицированный бетон М300, выравнивание по требованиям СНиП/СП, уплотнение бетонной смеси вибрацией

    svg
    Армирование: плита в 2 слоя арматуры Ø12–20 мм (рифлёная), армирование рёбер/ростверка Ø12–20 мм, вязка по проекту КЖ с учётом грунтов и нагрузок

    svg
    Закладные коммуникации по проекту:
    • канализация/водоснабжение — трубы в закладных
    • электроснабжение/слаботочные сети — закладные трубы
    svg
    Контроль качества: приёмка скрытых работ и готового этапа

    • svg
      Гидроизоляция под первый венец «Гидростеклоизол»
    • Подкладочная доска из лиственницы
    • svg
      Комплект из клееного бруса: 185х200 мм (толщина), опционально 270х360/200 (толщина)
    • svg
      Балки перекрытия клееные 70х180 мм
    • svg
      Зарезка чашек по проекту, пазы под оконные обсады, антисептирование, покрытие торцов воском, пакетирование (на заводе)
    • svg
      Сверловка под скрытую электропроводку
    • svg
      Материал: сосна/ель - на выбор
  • svg
    Вся конструктивная деревянная часть - камерной сушки, калиброванная, с завода «Русский Запад»

    Стропильная система: усиленная клееная (сечение по конструкторскому расчету)

    svg
    Пропитка огнебиозащитная

    svg
    Обрешетка/контробрешетка

    svg
    Вентиляционный зазор (вентзазор) между кровельным покрытием и утеплителем

    svg
    Ветровая и лобовая доска (сухая строганая вагонка)

    svg
    Подшив свесов кровли сухой вагонкой (с учетом потолков крыльца, веранд, террас, свесов)

    svg
    Пароизоляция FACRO Еurotop activ v 110 3-х слойная

    svg
    Диффузионная трехслойная мембрана Braas

    svg
    Утеплитель Knauf Insulation ПРОФ TS037 Aquastatik толщина 250 мм
    • Без фенол-формальдегидных и акриловых смол, благодаря технологии ECOSE(r)
    • Защита от воздействия влаги за счет гидрофобизирующей технологии Aquastatik
    • Без усадки, без появления щелей, срок службы не менее 50 лет
    svg
    Цементно-песчаная черепица Kriastak

    svg
    Водосточная система BRYZA (ПВХ) 125/90

  • svg
    ОПЦИОНАЛЬНО.
    Подберём и рассчитаем окна под ваш проект.

      ПВХ:
    • Rehau Delight 70 (2‑камерный стеклопакет, 3 стекла)
    • Rehau Intelio 80
    • VEKA Softline 82
      Алюминий:
    • Alutech
    • Schüco
    • Vidnal

    svg
    Монтаж обсадных узлов по скользящей системе

    svg
    Конфигурация открывания створок по ТЗ заказчика

    svg
    Энергосберегающие стеклопакеты

  • 1. Проектные работы

    • Разработка технического задания с учетом энергоэффективности и будущей эксплуатации
    • Теплотехнический расчет с подбором оптимального оборудования
    • Гидравлический расчет систем отопления и водоснабжения
    • Расчет электроснабжения с определением нагрузок и сечений кабелей
    • Проектирование ОВВК (отопление, водоснабжение, вентиляция, канализация) с визуализацией трасс
    • Проектирование ЭОМ (электрооборудование и освещение) с разделением на группы
    • Формирование оптимальных комплектаций в сметных расчетах с вариантами под разный бюджет

    2. Электрика (полная разводка под ключ)

    Силовая часть:

    • Вводной щит на 25-63А с возможностью расширения
    • Разделение линий на группы (розетки, освещение, силовая техника)
    • Медный кабель ВВГнг-LS 3х2,5 (розетки), 3х1,5 (освещение) в ПВХ-гофре, металлорукаве или металлических трубах
    • УЗО 30мА на влажные зоны, 100-300мА противопожарное на ввод
    • Автоматы ABB/Schneider Electric с селективной защитой
    • Заземление контуром 3 электрода + главная заземляющая шина (ГЗШ)

    Слаботочные системы:

    • Разводка LAN-кабеля Cat.6 в отдельном кабель-канале
    • Точки Wi-Fi с резервированием под Mesh-систему
    • ТВ-кабель SAT 703 с разводкой на все ТВ-точки

    Освещение:

    • Датчики движения в коридорах/санузлах
    • Умные выключатели (подготовка под Zigbee/Wi-Fi)

    3. Канализация (безнапорная, самотечная)

    • Трубы ПП/PVC 110/50 мм с уклоном 2 см/м
    • Фановый стояк с выводом выше кровли + аэрационный клапан
    • Ревизии на каждом этаже и повороте
    • Гидрозатворы на всех сантехприборах
    • Подготовка под септик/ЛОС с гильзой в фундаменте

    4. Котельная (газовая/электрическая/твердотопливная – на выбор)

    Газовый вариант:

    • Настенный двухконтурный котел 24-32 кВт 
    • Коаксиальный дымоход с системой турбонаддува
    • Группа безопасности: манометр, предохранительный клапан, воздухоотводчик
    • Циркуляционный насос Grundfos UPS с байпасом
    • Расширительный бак 18-24 л

    Альтернативы:

    • Тепловой насос "воздух-вода" с буферной емкостью
    • Каскад из электрокотлов с многотарифным учетом

    5. Отопление (радиаторное + теплые полы)

    • Двухтрубная лучевая разводка с коллектором
    • Биметаллические или стальные радиаторы 
    • Шаровые краны с термоголовками 
    • Теплые полы в мокрых зонах (укладка PEX-трубы 16 мм с шагом 15 см)

    6. Водоснабжение (ХВС/ГВС с рециркуляцией)

    • Полипропилен PPR PN20 (холодная), PPR PN25 (горячая)
    • Рециркуляция ГВС через полотенцесушитель
    • Фильтры: грязевик + магнитный + картриджный (5 мкм)
    • Насосная станция Grundfos JP (при скважинном водоснабжении)
    • Подготовка под бойлер косвенного нагрева (отдельная линия от котла)

    7. Вентиляция (естественная + принудительная)

    • Вытяжные каналы из санузлов/кухни (труба Ø125 мм)
    • Приточные клапаны Aereco в окнах/стенах
    • Подготовка под ПВУ (воздуховоды + рекуператор)

    8. Контроль и автоматизация

    • Умный щит с Z-Wave-контроллером
    • Датчики протечки Neptun с отсечными кранами
    • Метеодатчик для управления теплыми полами
    • 3D-сканы всех скрытых коммуникаций перед зашивкой

    Контроль и гарантия

    • Проверка внутренней службой
    • Пусконаладочные работы всех систем
    • Гарантия на выполненные работы
    • Фотоотчеты на каждом этапе

    Примечание: Комплектация может быть адаптирована под индивидуальные требования проекта. Уточняйте детали у наших специалистов!

Запишитесь на консультацию
Обсудим детали и найдём идеальное решение!
Я подтверждаю своё согласие на обработку моих персональных данных и соглашаюсь с условиями Политики конфиденциальности данного сайта
Часто задаваемые вопросы
  • 1. Какие виды домов строит компания?

    Компания "Русский Запад" специализируется на строительстве домов из различных материалов, предлагая клиентам широкий выбор в зависимости от их предпочтений, бюджета и особенностей участка.

    Основные типы домов:

    Дома из клееного бруса (ель, сосна) – главная специализация компании. Материал производится на собственном заводе, отличается минимальной усадкой (до 1%), высокой прочностью, отличной теплоизоляцией и эстетичным внешним видом.

    Дома из клееного бруса (сибирский кедр) – элитные дома с уникальными свойствами: антибактериальный эффект, приятный аромат, устойчивость к гниению.

    Каменные дома – строятся из керамических блоков и других современных материалов, отличаются высокой прочностью, отсутствием усадки и возможностью реализации сложных архитектурных решений.

    Дома из профилированного бруса – оптимальный вариант по соотношению цены и качества с улучшенными теплоизоляционными свойствами.

    Компания предлагает как типовые проекты (с возможностью адаптации), так и полностью индивидуальное проектирование.

  • 2. В каких регионах работает компания?

    "Русский Запад" осуществляет строительство в Центральном федеральном округе, с основным фокусом на:

    • Москву

    • Московскую область

    • Ближайшие регионы: Калужская, Тульская, Тверская, Ярославская, Владимирская, Рязанская области.

    Преимущества работы в этих регионах:

    • Собственное производство клееного бруса во Владимирской области, что обеспечивает быструю доставку материалов.

    • Опыт строительства в различных климатических и ландшафтных условиях.

    • Возможность рассмотрения проектов в других регионах – обсуждается индивидуально.

  • 3. Делает ли компания проектирование "под ключ"?

    Да, "Русский Запад" предоставляет полный цикл услуг – от проектирования до сдачи готового дома.

    Этапы работы "под ключ":

    1. Проектирование

    • Эскизный проект с 3D-визуализацией.

    • Рабочая документация (чертежи, расчеты, инженерные решения).

    2. Строительство

    • Возведение фундамента, стен, кровли.

    • Монтаж инженерных систем.

    3. Отделка

    • Внутренняя и внешняя отделка.

    • Установка сантехники, электрики, систем отопления.

    Преимущества:

    • Единая ответственность (не нужно искать подрядчиков).

    • Согласованность всех этапов.

    • Фиксированная смета (без скрытых платежей).

    • Гарантия на весь объект.

  • 4. Сколько лет на рынке?

    Компания работает с 2003 года (более 20 лет). За это время:

    • Построено свыше 3500 объектов.

    • Разработаны собственные технологии производства клееного бруса.

    • Сформирована команда профессиональных архитекторов, инженеров и строителей.

  • 5. Сколько объектов уже построено?
    На сегодняшний день компания реализовала более 3500 проектов, включая:
    • 2100+ домов из клееного бруса
    • 200+ домов из кедра
    • 300+ каменных домов
    • 700+ комбинированных построек
  • 6. Есть ли у компании собственное производство?

    Да, во Владимирской области расположен собственный завод по производству клееного бруса.

    Преимущества:

    • Полный контроль качества на всех этапах.

    • Использование экологически чистых материалов.

    • Возможность изготовления нестандартных элементов.

    • Оптимизация логистики (собственный автопарк).

  • 7. Какие этапы сотрудничества с клиентом?

    1. Первичная консультация – обсуждение пожеланий, бюджета, выезд на участок.

    2. Разработка проекта – эскиз, 3D-визуализация, рабочие чертежи.

    3. Согласование сметы – фиксация стоимости в договоре.

    4. Подписание договора – прописываются сроки, этапы оплаты, гарантии.

    5. Строительство – поэтапное возведение дома с контролем качества.

    6. Сдача объекта – проверка, подписание акта, передача документов.

    7. Гарантийное обслуживание – устранение возможных недостатков.

  • 8. Какой цикл строительства типового дома?

    Для дома площадью до 250 м² срок строительства составляет до 5 месяцев.

    Этапы и сроки:

    • Подготовка участка (1–2 недели).

    • Фундамент (2–3 недели).

    • Стены и перекрытия (2–3 недели).

    • Кровля (2–3 недели).

    • Инженерные системы (2–3 недели).

    • Отделка (3–4 недели).

  • 9. Можно ли заказать индивидуальный проект?

    Да, архитекторы компании разрабатывают уникальные проекты с учетом:

    • Пожеланий клиента.

    • Особенностей участка (рельеф, грунт, инсоляция).

    • Бюджета и функциональных требований.

    Этапы индивидуального проектирования:

    1. Предпроектное исследование.

    2. Эскизный проект + 3D-визуализация.

    3. Рабочая документация.

    4. Согласование проекта.

  • 10. Делает ли компания внутреннюю отделку?

    Да, предоставляется полный комплекс отделочных работ:

    • Черновая отделка (стяжка, штукатурка).

    • Чистовая отделка (плитка, паркет, покраска).

    • Монтаж инженерных систем (электрика, водоснабжение, отопление).

    • Дизайн интерьеров (подбор материалов, мебели, освещения).

  • 11. Как формируется стоимость строительства?

    Стоимость фиксируется в договоре и зависит от:

    1. Параметров дома (площадь, этажность, сложность архитектуры).

    2. Материалов (тип бруса, кровля, окна, отделка).

    3. Инженерных решений (отопление, вентиляция, "умный дом").

    Гарантия: цена не изменится, если клиент не вносит правки в проект.

  • 12. Используются ли экологичные материалы?

    Да, компания уделяет особое внимание экологичности:

    ● Клей без формальдегида (AICA AIBON AUX-100/AUH-5E).

    ● Безопасные пропитки на водной и масляной основе.

    ● Утеплитель Knauf Insulation (без фенола).

    ● Древесина из экологически чистых регионов.

  • 13. Можно ли внести изменения в проект во время работы?

    Да, но лучше на этапе проектирования.

    Последствия изменений:

    ● На ранних этапах – минимальные корректировки.

    ● На поздних – возможен перерасход бюджета и увеличение сроков.

  • 14. Какие преимущества клееного бруса?

    1. Минимальная усадка (до 1% против 7–10% у массива).

    2. Высокая прочность (за счет склеивания ламелей).

    3. Отличная теплоизоляция (200 мм бруса = 1 м кирпича).

    4. Экологичность (безопасные клеи и пропитки).

    5. Эстетичность (не требует дополнительной отделки).

    6. Долговечность (срок службы – 50+ лет).

  • 15. Как контролируется качество работ?

    Многоступенчатая система контроля:

    1. Проверка материалов на производстве.

    2. Контроль на каждом этапе строительства.

    3. Промежуточные приемки (фундамент, стены, кровля).

    4. Финальная проверка перед сдачей.

  • 16. Какие гарантии предоставляет компания?

    ● 10 лет – на несущие конструкции.

    ● 5 лет – на кровлю.

    ● 3 года – на инженерные системы.

    ● 2 года – на отделочные работы.

    Условия: соблюдение правил эксплуатации.

  • 17. Как осуществляется доставка материалов?

    ● Собственный автопарк (грузовики, манипуляторы).

    ● Защита материалов при транспортировке.

    ● Оптимизированная логистика (особенно для Москвы и области).

  • 18. Можно ли выбрать материалы самостоятельно?

    Да, клиент может участвовать в подборе:

    ● Типа бруса, кровли, окон.

    ● Отделочных материалов.

    ● Сантехники, электрики.

  • 19. Как начать сотрудничество?

    1. Свяжитесь с нами:

    o Телефон: +7 (495) 234-01-11

    o Email: info1@ruswest.ru.

    o Офис: пр. Ольминского, 3А, стр. 3 (офис 936)

    2. Получите консультацию.

    3. Заключите договор.

    "Русский Запад" – надежность, проверенная 20-летним опытом и тысячами довольных клиентов!

Заказать звонок
Оставьте заявку, и наш менеджер свяжется с вами в ближайшее время, и ответит на все интересующие вопросы
Я подтверждаю своё согласие на обработку моих персональных данных и соглашаюсь с условиями Политики конфиденциальности данного сайта
Рассчитать стоимость проекта
Оставьте заявку, и наш менеджер свяжется с вами в ближайшее время
Я подтверждаю своё согласие на обработку моих персональных данных и соглашаюсь с условиями Политики конфиденциальности данного сайта
Оставить заявку
Оставьте заявку, и наш менеджер свяжется с Вами в ближайшее время
Я подтверждаю своё согласие на обработку моих персональных данных и соглашаюсь с условиями Политики конфиденциальности данного сайта